Sehr sonnige 2-Zimmerterrassenwohnungen

in Innsbruck/sadrach

Sie wohnen in Sadrach mit
herrlichen Blick auf die Bergwelt


Die drei Wohnungen befinden sich in Sadrach und bietet
naturnahes Wohnen, ohne auf Annehmlichkeiten
des täglichen Lebens verzichten zu müssen.
Sämtliche Infrastruktur ist vorhanden, das Stadtzentrum ist in etwa
15 Minuten zu Fuß erreichbar, die Bushaltestelle ist direkt vor
dem Haus.

Innsbruck ist die Stadt der kurzen Wege, mit
gemütlichen Restaurants, idyllischen Parkanlagen, Shopping-Meilen und ruhige Altstadt - Gassen. In den Gebieten rund um das Stadtzentrum finden sich Einkaufs- und Freizeitzentren mit umfassendem Angebot.
Mit den vielen Bildungsinstituten bieten Hochschulen sowie die Universitäten attraktive Bildungsmöglichkeiten an. 

 


Objektbechreibung
Die Wohnanlage wurde 2002 mit 7 Einheiten sowie einer Tiefgarage errichtet.
Das Wohnhaus gliedert sich in Kellergeschoss, Erdgeschoss,
Obergeschoss und Dachgeschoss, die einzelnen Geschosse
sind durch ein nordseitiges Stiegenhaus und Personenaufzug -4 Stationen erschlossen.
Zu den allgemein Räumen gehören ein Fahrradraum,

Die Grundstücksfläche beträgt ca. 806 m2, die Zufahrt zur Liegenschaft erfolgt über die
Schneeburggasse. Direkt vor der Haustür befindet sich die Bushaltestelle, welche im 10-Minutentakt angefahren wird und Sie in 15 Minuten zum Hauptbahnhof bringt.
Die helldurchfluteten Zweizimmerwohnungen eignen sich ideal zur
Eigennutzung oder für Anleger, zurzeit sind die Einheiten bis 2026 vermietet.

 

Ausstattung
Heizung: Gas zentral (Fußbodenheizung)
Warmwasser: Zentral
Böden: in der gesamten Einheit Klebeparkett in Eiche,
im Sanitärbereich glasierter Fliesenbelag
Terrasse: Folienisolierung, Holzrattenrost aus Lärche
Fenster: Aluminium pulverbeschichtet Dreh-und
Drehkippflügel, Zwei-Scheibenisolierverglasung
(k-Wert, Glas 1,1 WM2K)
Türen: Stahlzargen lackiert, Vollbautürblatt
Sanitär: Badewanne, Waschtisch, Zu- und Abfluss
für die Waschmaschine, Wand/WC mit Unterspülkasten
Einrichtung:
Küche mit sämtlichen E-Geräten

 

Sonstige Eckdaten
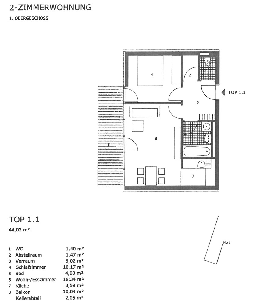
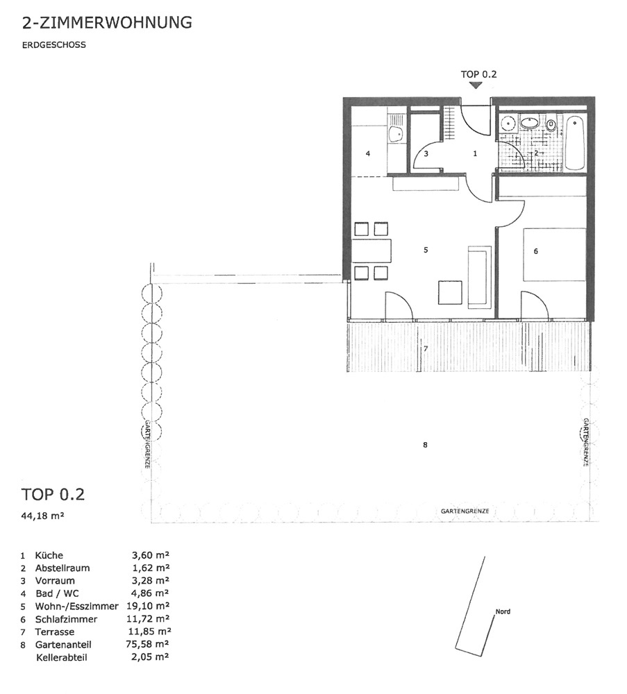
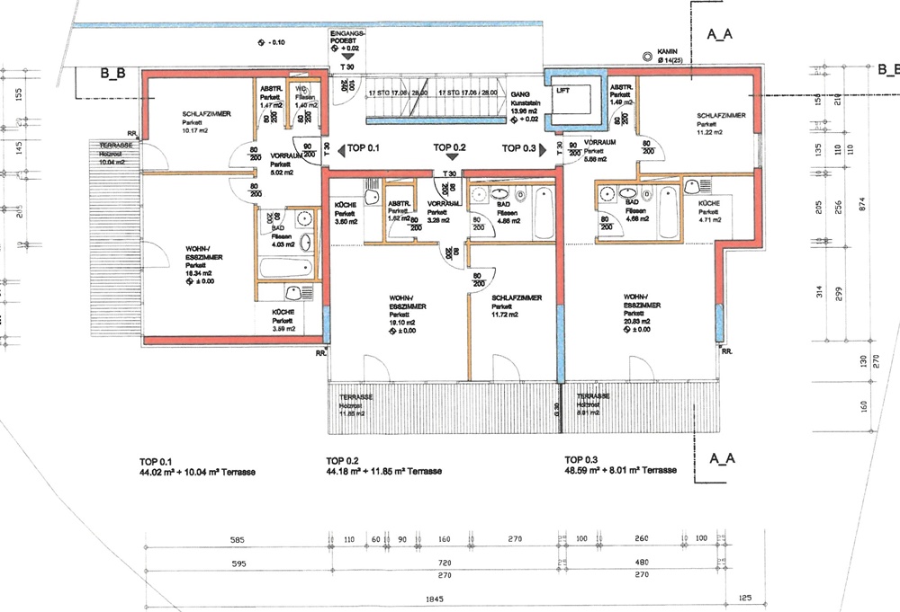
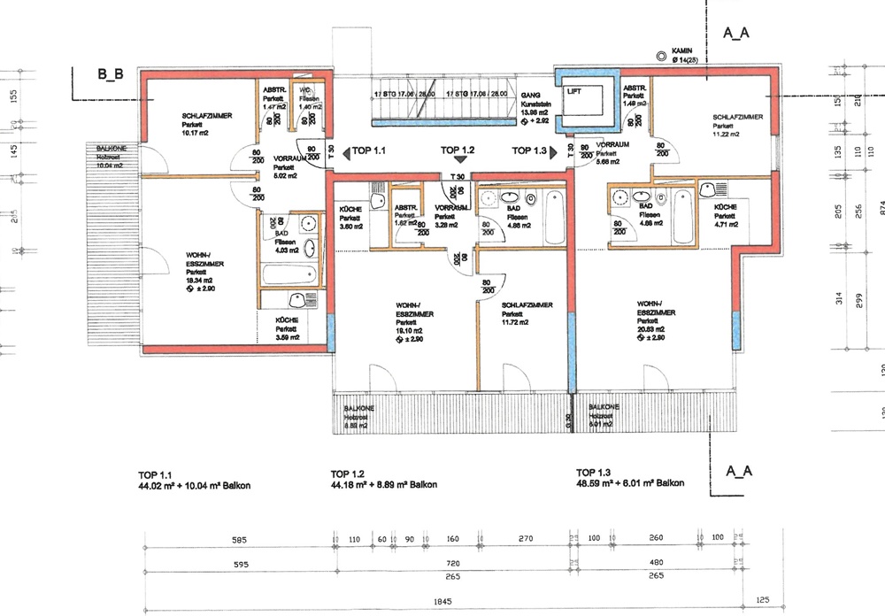
Objekt: Zweizimmerwohnungen
Offer/Nr.: 20230607-03
Zimmer: 2
Baujahr: 2002
Etage: EG und 1. OG
Wohnfläche: je Einheit ca. 44 m2
Terrasse Top 0.1 und 0.2 /ca. 10 m2
Garten Top 0.1 und 0.2 / ca. 83 m2 und 75 m2
Balkon Top 1.1 /ca. 10 m2
Kellerfläche: 4 m2
Stellplatz je Einheit 1 Tiefgaragenplatz


Verfügbarkeit: die Einheiten sind vermietet
Top 0.1 bis 14.04.2026
Top 0.2 bis 30.11.2026
Top 1.1 bis 31.08.2026

 

 

Kaufpreise - Wohnung inkl. 1 Tiefgaragenplatz und Keller

Top 0.1 EG    € 361.000,00
Top 0.2 EG    € 392.000,00

Top 1.1 1.OG € 351.000,00

 

Nebenkosten:
•Courtage`:  3 %
•Grunderwerbssteuer: 3,5 %
•Grundbucheintrag: 1,1 %
•plus Vertragskosten

 

Ist dieses Objekt für Sie von Interesse? Wir freuen uns auf Ihre Rückmeldung!
Für weitere Informationen oder zur Vereinbarung eines Besichtigungstermins stehen wir
Ihnen unter der Tel.Nr. +43 512 59832 oder Mobil +43 664 1611903 gerne zur Verfügung.