2-Zimmerwohnung in Pasing/obermenzing

Objekt/offer

20190521-03

Müchnen Pasing-Obermenzing

2-Zimmerwohnung 

VERTRAG UNTERZEICHNET

Angebote im Ausland - Immobilien Berger Raimund


Pasing - Obermenzing zählt aufgrund seiner exponierten Lage zu den beliebtesten Wohnlagen in München. Es bietet Ihnen eine ausgezeichnete Infrastruktur, Nähe zum Stadtzentrum, einen hohen Freizeitwert und verbindet idealerweise das Stadtleben mit dem Leben auf dem Land. Der Würmkanal befindet sich nur wenige Gehminuten von der Wohnung entfernt und lädt zu ausgiebigen Spaziergängen in den Nymphenburger Schlosspark ein.
In München - Pasing ist ein voll ausgebautes Schulsystem mit Grund- und Hauptschule, Realschule und Gymnasium vorhanden. Das Gymnasium befindet sich in nur 2 km Entfernung.
Die Realschule und Grundschule befinden sich an der Blutenburg.
Einkäufe des täglichen Bedarfs können Sie bequem zu Fuß erledigen. Ein Supermarkt und ein Ärztehaus befinden sich nur wenige Minuten vom Objekt entfernt.
Die nächste S-Bahn-Station ist in Pasing und in unmittelbarer Nähe ist die Busverbindung.

Die Wohnanlage besteht aus zwei Häusern mit je 3 Wohnungen und wurde 1993 errichtet. Sie wohnen in einer absolut ruhigen Wohngegend mit Ein- und Zweifamilienhäusern und kleinen Wohnanlagen in der Nähe der Blutenburg.

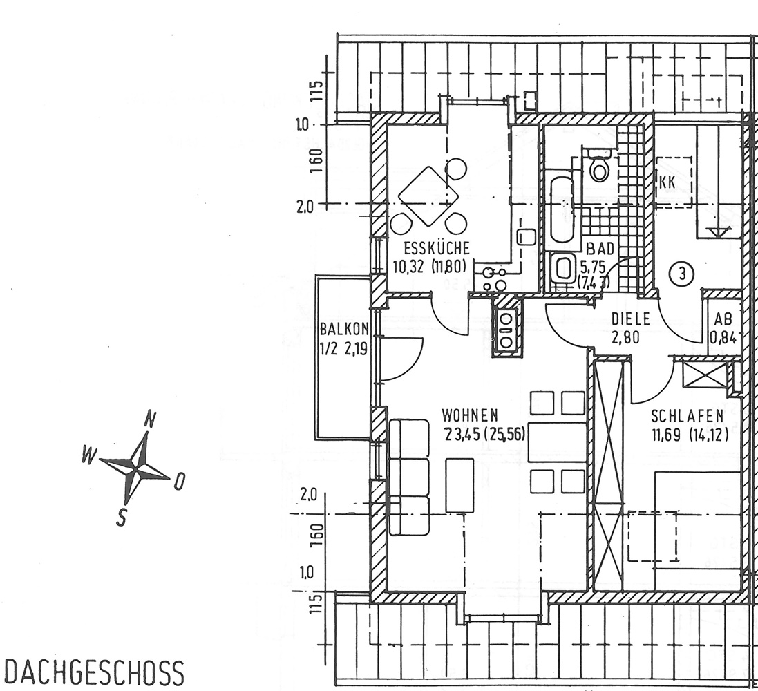
Die 2-Zimmerwohnung befindet sich im Dachgeschoss und verspricht großzügiges und lichtdurchflutetes Wohnen. Eingeteilt in Diele, Küche/Essen, Bad/Dusche/WC, Schlafzimmer und einem Wohnraum, Balkon ca. 4,5 m2, mit herrlichem Weitblick, Orientierung Süd-West.

Die Ausstattung bietet Parkett in der gesamten Einheit bis auf die Küche und Bad, dort wurden PVC bzw. Fliesen verlegt. Die Fenster im Wohnzimmer und Küche sind mit Rolläden ausgestattet, eine Markise über dem Balkon ist vorhanden (Bespannung wird erneuert).

Das Bad wurde vor drei Jahren saniert, Duschwand und Waschbecken wurden erneuert.

 

Technische /Details

Baujahr: 1993

Wohnnutzfläche ca. 62 m2
Balkon ca. 4,5 m2
großzügiges Kellerabteil 5,37 m2
1 Garagenabstellplatz - Duplex

Fahrrad- Geräteraum ist für die Allgemeinheit zugänglich

Fenster: Massivholz Mahagoni mit Rollläden, Velux -Dachflächenfenster
Türen: Stahlzargen mit Holztüren weiß lackiert
Böden: Parkett, in der Küche - PVC, Bad - Fliesen
Heizung: Öl/Zentral
Warmwasser: Zentral
Anschlüsse: Kanal, Strom, Telefon, TV, Wasser,
Sanitäre: Wanne, Duschtasse mit Regendusche, WC, Waschbecken, Wasserzähler

Die mtl. Betriebskosten sind inkl. a`conto Heizung und Instand.-Rücklage
€ 324,00



VERTRAG UNTERZEICHNET


Nebenkosten:

  • Vermittlungsgebühr
  • Grunderwerbssteuer
  • Grundbucheintrag
  • plus Vertragskosten

Ist dieses Objekt für Sie von Interesse? Wir freuen uns auf Ihre Rückmeldung.Für weitere Informationen oder zur Vereinbarung eines Besichtigungstermins stehen wir Ihnen unter der Tel. Nr. +43 512 56 71 43 Mobil: +43 664 1611903 gerne zur Verfügung.